532 Stoney Battery Rd, Earleville, MD 21919
Toggle Navigation
Images
Videos
Floor Plans
Map
532 Stoney Battery Rd
Earleville, MD 21919
Scroll to Content
Images
Slideshow
Photo Grid
Hide
Previous
Next
Show more
Videos
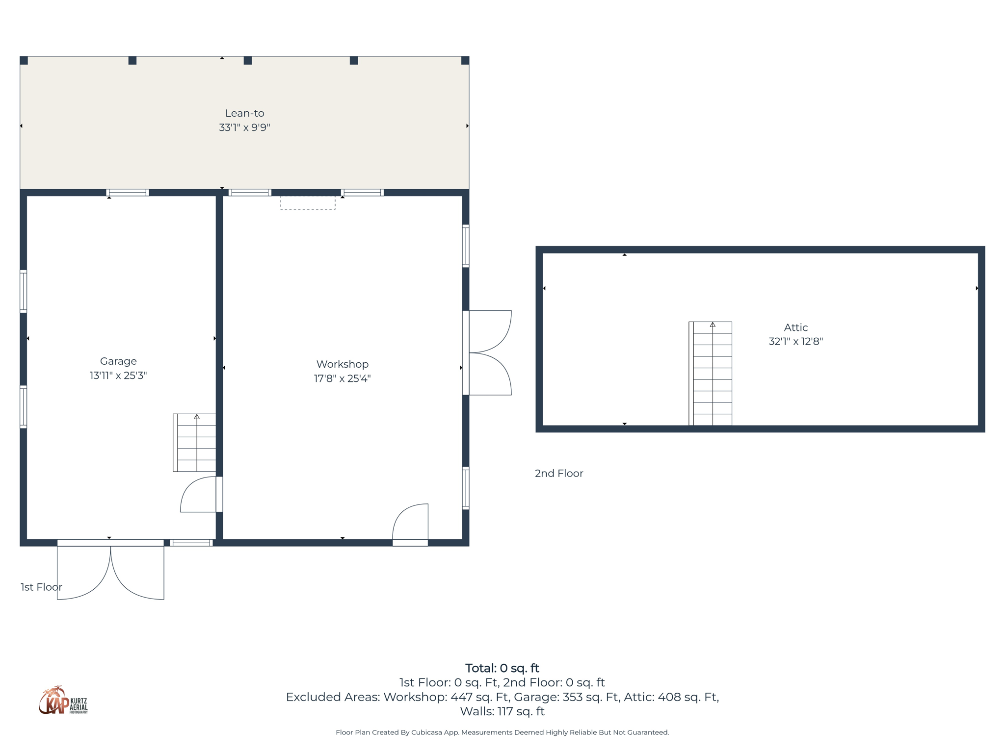
Floor Plans
Slideshow
Photo Grid
Hide
Previous
Next